侧入式皮带搅拌机

一、侧入式皮带搅拌机概述
侧入式皮带搅拌机是将搅拌装置安装在设备筒体的侧壁上,搅拌机上的搅拌器通常采用轴流型,以推进式搅拌器为多,在消耗同等功率情况下,能得到好的搅拌效果,功率消耗为顶搅拌的1/3~2/3,成本为顶搅拌的1/4~1/3。转速可在200~750r/min。
广泛应用于水处理、沼气发酵、脱硫、除硝、化工、食品、造纸、石油等行业以及各种大型贮罐或贮槽的搅拌。使互溶液体混合均匀;使固体粒子在液相中溶解、离底悬浮或均匀悬浮;使不相溶的另一液相均匀悬浮或充分乳化;强化相间的传质(如吸收等);强化传热及防止沉积等。具有投资少、消耗功率小、搅拌功率高、操作方便等特点。
二、产品特点
1)软传动,机械损伤低,结构紧凑,运行平稳;
2)占地面积小,处理量大,能耗低;
3)安装、运行、维护费用低;
4)可在要求的混合时间内达到一定的搅拌强度,满足混合速度快、均匀、充分等要求,且水头损失小,并可适应水量的变化以适用于各种介质容量的搅拌。
三、构造及工作过程
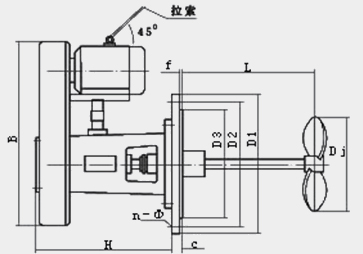
CPJ型侧入式皮带搅拌机由电机、皮带盘、机架、机械密封、堵漏装置、搅拌轴、搅拌器等组成。根据密封方式可分为:A型:机械密封,B型:填料密封,C型:其它密封方式,可适用于不同密封要求的场合。安装方式为卧式安装,也可根据现场工艺条件调整安装方式。
驱动装置采用普通电机或防爆电机直接通过皮带轮驱动装置与搅拌轴联接。搅拌轴由双向推力轴承和水润滑滑动轴承支承,具有足够的强度和刚度,并具有好的稳定性。
侧入式皮带搅拌机是将搅拌装置安装在设备筒体的侧壁上,搅拌机上的搅拌器通常采用轴流型,以推进式搅拌器为多,在消耗同等功率情况下,能得到好的搅拌效果,功率消耗为顶搅拌的1/3~2/3,成本为顶搅拌的1/4~1/3。转速可在200~750r/min。
广泛应用于水处理、沼气发酵、脱硫、除硝、化工、食品、造纸、石油等行业以及各种大型贮罐或贮槽的搅拌。使互溶液体混合均匀;使固体粒子在液相中溶解、离底悬浮或均匀悬浮;使不相溶的另一液相均匀悬浮或充分乳化;强化相间的传质(如吸收等);强化传热及防止沉积等。具有投资少、消耗功率小、搅拌功率高、操作方便等特点。
二、产品特点
1)软传动,机械损伤低,结构紧凑,运行平稳;
2)占地面积小,处理量大,能耗低;
3)安装、运行、维护费用低;
4)可在要求的混合时间内达到一定的搅拌强度,满足混合速度快、均匀、充分等要求,且水头损失小,并可适应水量的变化以适用于各种介质容量的搅拌。
三、构造及工作过程
CPJ型侧入式皮带搅拌机由电机、皮带盘、机架、机械密封、堵漏装置、搅拌轴、搅拌器等组成。根据密封方式可分为:A型:机械密封,B型:填料密封,C型:其它密封方式,可适用于不同密封要求的场合。安装方式为卧式安装,也可根据现场工艺条件调整安装方式。
驱动装置采用普通电机或防爆电机直接通过皮带轮驱动装置与搅拌轴联接。搅拌轴由双向推力轴承和水润滑滑动轴承支承,具有足够的强度和刚度,并具有好的稳定性。
四、型号表示方法


五、侧入式皮带盘搅拌参数

CPJ侧入式搅拌机主要参数及尺寸
| 搅拌机型号 | 电机功率 | 搅拌机转速 | 搅拌器直径 | 安 装 外 型 及 尺 寸 | 搅拌容量 | 重量 | ||||||||
| (Kw) | (r/min) | Dj | D1 | D2 | D3 | C | F | n-Ø | L | H | B | (m3) | (Kg) | |
| CPJ-0.55 | 0.55 | 400 | 250 | 375 | 335 | 309 | 24 | 2 | 12-Ø18 | 370 | 550 | 580 | 5~10 | 197 |
| 250 | 350 | 490 | 445 | 413 | 26 | 530 | 208 | |||||||
| CPJ-0.75 | 0.75 | 400 | 250 | 375 | 335 | 309 | 24 | 2 | 12-Ø18 | 370 | 8~15 | 198 | ||
| 275 | 350 | 490 | 445 | 413 | 26 | 530 | 209 | |||||||
| CPJ-1.1 | 1.1 | 400 | 300 | 440 | 395 | 363 | 24 | 2 | 12-Ø18 | 450 | 10~25 | 209 | ||
| 250 | 400 | 540 | 495 | 463 | 28 | 600 | 228 | |||||||
| CPJ-1.5 | 1.5 | 400 | 300 | 440 | 395 | 363 | 24 | 2 | 16-Ø22 | 450 | 15~30 | 212 | ||
| 275 | 400 | 540 | 495 | 463 | 28 | 600 | 231 | |||||||
| CPJ-2.2 | 2.2 | 375 | 350 | 490 | 445 | 413 | 26 | 2 | 16-Ø22 | 530 | 680 | 700 | 25~30 | 345 |
| 250 | 450 | 595 | 550 | 518 | 30 | 600 | 373 | |||||||
| CPJ-3 | 3 | 400 | 350 | 490 | 445 | 413 | 26 | 2 | 16-Ø22 | 530 | 30~60 | 348 | ||
| 275 | 450 | 595 | 550 | 518 | 30 | 600 | 376 | |||||||
| CPJ-4 | 4 | 375 | 400 | 540 | 495 | 463 | 28 | 2 | 16-Ø22 | 600 | 40~80 | 368 | ||
| 300 | 450 | 595 | 550 | 518 | 30 | 600 | 382 | |||||||
| CPJ-5.5 | 5.5 | 400 | 400 | 540 | 495 | 463 | 28 | 2 | 20-Ø22 | 600 | 800 | 820 | 50~100 | 565 |
| 275 | 500 | 645 | 600 | 568 | 32 | 650 | 593 | |||||||
| CPJ-7.5 | 7.5 | 375 | 450 | 595 | 550 | 518 | 30 | 2 | 20-Ø22 | 600 | 80~150 | 590 | ||
| 275 | 550 | 755 | 705 | 667 | 36 | 700 | 623 | |||||||
| CPJ-11 | 11 | 400 | 450 | 595 | 550 | 518 | 30 | 2 | 20-Ø26 | 600 | 150~250 | 636 | ||
| 275 | 600 | 755 | 705 | 667 | 36 | 750 | 753 | |||||||
| CPJ-15 | 15 | 400 | 500 | 645 | 600 | 568 | 32 | 2 | 24-Ø26 | 650 | 200~300 | 666 | ||
| 250 | 650 | 860 | 810 | 772 | 40 | 5 | 810 | 830 | ||||||
备注:
1、表中重量为约重,不含悬挂或地脚支撑的重量
2、电机和尺寸根据用户的物料特性及实际情况来定
3、当容器壁厚太薄时,强度不够,请使用悬挂、 地脚支撑等辅助加固措施
4、表中数据只做参考用



网站首页
苏公网安备32020602003193号